2022.05.05
#ブログ
NEW!! ラクイエ新プラン登場!!
こんにちは!
新築営業部に木原です☺
もうすっかり桜も咲き始め春の訪れを感じます🌸
新築営業部は、今年新入社員が3名加わりました!
今回は、新しく追加されたタイプの間取りについてご紹介したいと思います♪
ラクイエは、4/10から【28パターン】の間取りをご用意しております。
新しく増えた4タイプのうち今回は【Otype】と【Ptype】をご紹介いたします!!
まずは・・・
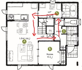
4LDK・Otype
お片付け上手な収納を中心とした回遊式の間取り 

こちらは
階段を中心にぐるっと・・・!収納が付いています!!
玄関のホールには、コートが見えないように隠せたり、脱衣場の下には日用品などのストック品をしまったり、ホールの下には掃除機などの家電を収納したりと、家事動線のなかで収納があるのでとても便利な間取りです!
次に・・・・
4LDK・Ptype
 リビングを広くとった2階4室の4LDK 

こちらは
LDK18畳と玄関とSCLの広々をした間取りになります(*^^*)
さらに、2階には6.3畳の洋室が特徴なのでランドリールームとして活用したりまだ幼い子供の主寝室プラス絶好の遊び場として使用したり・・・♪
ご家族の暮らしに合わせた空間をプランニングできますよ!
 
                     
                     
                     
                     
                     
                     
                         
                         
                        
 
								 
								 
                         
                         
                             
                        