NEWS・COLUMN
新着情報・ブログ・コラム
-

土地選びについて
2021.07.19
#YUUZOU.I
-

ラクイエの「平屋」が今注目なんです!
2021.04.29
#YUUZOU.I
-

クリアトーンについて
2021.07.15
-

9月30日まで!!すまい給付金について
2021.07.05
#WAKANA.K
-

住宅ローンについて【お客様例】
2021.04.27
#KUNIAKI.H
-

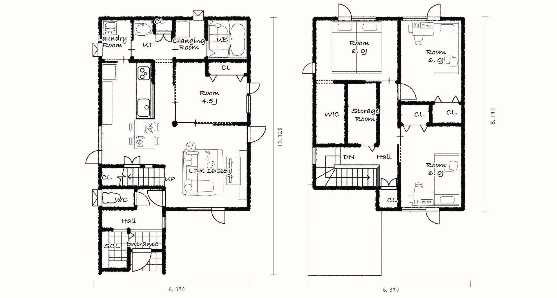
ラクイエ4LDK おすすめタイプの紹介
2021.07.12
#非公開: AYA.H
-

たまに聞く犬走とは何?
2021.04.22
#非公開: AYA.H
-

ラクイエの性能について
2021.06.21
#WAKANA.K
-

ラクイエNEWプラン!タイプMをご紹介!
2021.04.19
#MAKI.N
-

ラクイエDタイプ 新築館前モデルハウス
2021.06.17
-

住宅ローンについて
2021.04.19
-

住宅ローンの返済額は…
2021.06.14
#YUUZOU.I











