既に会員登録済みの方は
-
65
hiraya 3LDK-A
24.00坪
キッチンからリビングを見渡せて水廻り集中で家事ラクな間取り
-
66
hiraya 3LDK-B
23.75坪
子育てから独立後も、変わらず使い勝手が良い間取り
-
67
hiraya 3LDK-C
24.00坪
水廻りが一直線に集中。横移動だけで無駄なく家事がこなせる間取り。
-
68
hiraya 3LDK-D
24.25坪
間口の狭い土地にもおススメ。ウォークインクローゼット3帖の間取り。
-
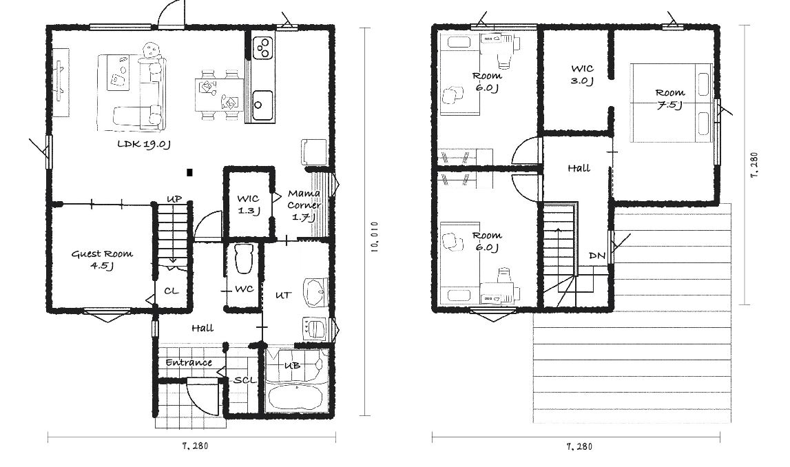
69
hiraya 3LDK-E
25.00坪
来客の多い家族におススメ。生活感の見えづらい開放的な間取り。
-
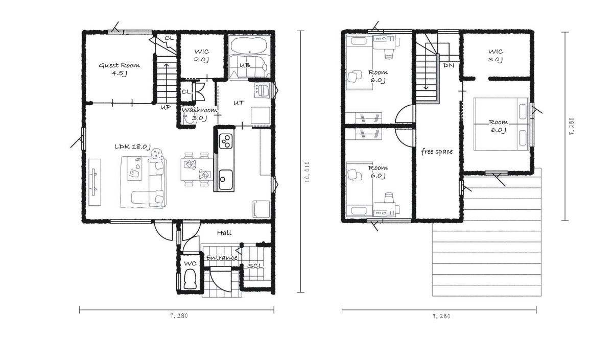
70
5LDK-A
34.41坪
収納を備えた階段中心の回遊式、各居室を広めにとった間取り




