無骨でヴィンテージ感のある味わい深い印象のインダストリアルの要素と、
まるでホテルの一室ような高級感のあるホテルライクの要素をかけ合わせたスタイル。
インダストリアルの無機質さとホテルライクのシックなカラーでかっこよさを演出します。
PLAN
プラン紹介
上質なコーヒーやお酒が似合う、
余裕のある大人のライフスタイル
ぐるぐる使いやすい回遊動線で、仕事も遊びも
全力で忙しい家族に
余裕の時間を与えてくれる
仕掛けがたくさんある間取り。
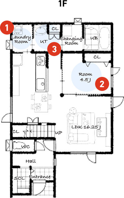
- 1F
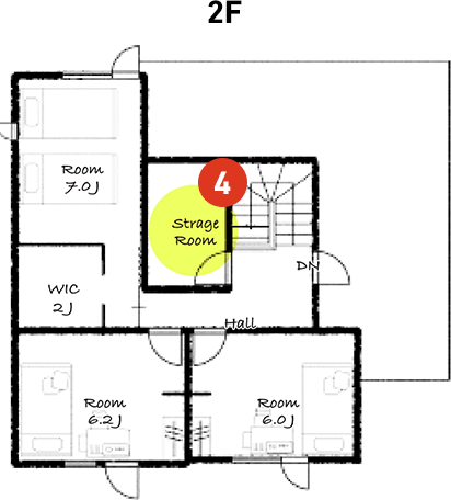
- 2F
延床:120.01㎡(36.29坪) / 1F:71.60㎡(21.65坪)
/ 2F:48.41㎡(14.64坪)

1Fデスクカウンター2か所
それぞれのプライベート空間も
さりげなく叶えるカウンター。

1Fキッチン/UT収納棚
回遊動線で家事ラク。
さらに家事ラクにしてくれる収納棚も
ポイント!

玄関
ゆったり玄関は自転車も置ける広さ。

2Fストレージルーム
共用のストレージルームは
趣味の隠れ家。
明るい色調の木目を基調としたシンプルなスタイル。
木のぬくもりを感じさせ、やわらかな雰囲気のインテリアです。
所々に北欧雑貨を飾って遊び心を出したり、カラーの壁紙を取り入れて
アクセントにするとその家庭ごとの個性が光ります。
PLAN
プラン紹介
ポカポカした木の温もりと
アクセントカラーで叶える、
ゆったりとしたライフスタイル
欲しい場所に欲しいもの。くるくる動線で
水廻りの動線が使いやすい。
プライベートもちゃんと充実させてくれる間取り。
- 1F
- 2F
延床:104.16㎡(31.49坪) / 1F:58.38㎡(17.65坪)
/ 2F:45.78㎡(13.84坪)

1Fシューズクローゼット
上着もココ♪
室内に余計なものを持ち込まない。

1Fキッチン→浴室
水廻りまっすぐ集中!家事がラク。

2Fフリースペース
フリースペースは趣味の場所♪

2Fトイレ
家族が使いやすい!朝の混雑時も安心。
自然の生命力を感じるボタニカルな要素と、エキゾチックな雰囲気のあるタイルや
幾何学模様が特徴のモロッカンインテリアをかけ合わせたスタイル。
ボタニカルのアースカラーと、モロッカンの鮮やかな原色が空間にメリハリをつけます。
PLAN
プラン紹介
緑に囲まれた鮮やかで元気な
インテリアで叶える、
自然体なライフスタイル
キッチン横にダイニングを置くことで
リビングを広く使える間取り。
- 1F
- 2F
延床 :109.31㎡(33.05坪) / 1F:62.11㎡(18.78坪)
/ 2F:47.20㎡(14.27坪)

1F洗面
「トイレ」「ただいま」手洗い。一石二鳥♪

1F洋室
2面開放でお子様も広々遊べる!

カップボード横は余裕の広さ
スペースがあるから家事用デスクも
置けちゃう!

2F共用ストレージルーム
家族みんなが使える
広々ストレージルーム。
淡い色を基調とした木製家具やファブリックでまとめられた韓国インテリアと、
落ち着いたトーンの色味ですっきりした印象の塩系インテリアをかけあわせたスタイル。
モノを少なくすることで雑多な生活感を消しつつも、ほんのり暖かみのあるリラックス空間を演出します。
PLAN
プラン紹介
生活感のないシンプルさで叶える、
ミニマリストなライフスタイル
動線上のあちこちにある収納のおかげで、
お片付けをラクにしてくれる間取り。
- 1F
- 2F
延床 :109.31㎡(33.06坪) / 1F:59.62㎡(18.03坪)
/ 2F:49.69㎡(15.03坪)

1Fランドリールーム
憧れのランドリールームが
洗濯時のストレスを軽減してくれます。

1F洋室
二面開放でリビングさらに広々。

ユーティリティー
洗面独立形式で
お風呂時間も気兼ねなく使える♪

2Fストレージルーム
いつでも自由に出入りできる
ストレージルーム。







































